9 Genius Container Residence Ground Plans and Design Ideas

by Editorial Team
21 views

Serious about exploring the world of container houses? You’re in for an thrilling journey. These constructions are shortly rising as a canvas for sustainable, fashionable, and surprisingly spacious residing. From a comfortable minimalist studio to a multi-level household house, the probabilities are practically infinite.

The true magic occurs within the starting stage. A well-thought-out container home plan transforms a easy transport container right into a purposeful and delightful house. Container house inside design concepts are all about maximizing each sq. inch, guaranteeing a logical circulate, and creating an area that feels open and welcoming. The precise structure makes all of the distinction.

This information will stroll you thru 9 superb container house ground plans to spark your creativeness. We’ll discover completely different sizes, layouts, and design kinds that will help you discover the right match for a contemporary way of life. Get able to rethink what’s attainable with these unbelievable constructions.

Frequent Container Ground Plan Sizes and What They Supply

Earlier than you begin designing container house ground plans, it’s important to know the usual container sizes you may be working with. Every dimension presents distinctive alternatives and challenges on your structure.

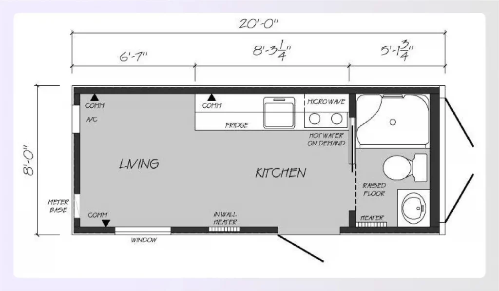
  • 20 ft Normal Container (20′ x 8′): This compact choice offers about 160 sq. ft of area. It’s good for a tiny house, a indifferent workplace, or a visitor suite. Its restricted footprint calls for a intelligent and environment friendly structure the place every bit of furnishings serves a goal, making minimalism your greatest good friend.
  • 40 ft Normal Container (40′ x 8′): As the most well-liked selection, this container offers you 320 sq. ft to play with. This dimension is right for a snug one-bedroom or perhaps a cozy two-bedroom transport container house ground plan with a purposeful kitchen, residing space, and loo.
  • Excessive Dice Containers (9.5′ tall): When you crave a spacious and ethereal really feel, excessive dice containers are a unbelievable selection. That further foot of vertical top makes a large distinction, permitting for lofted beds, taller home windows, or spectacular lighting fixtures with out making the area really feel cramped.

Popular container home sizesPopular container home sizes9 Inspiring Container Residence Ground Plans by Design & Dimension

Listed here are 9 distinctive container house ground plans that showcase the flexibility and creativity of container residing, from single-unit studios to sprawling multi-container houses.

Small & Environment friendly: 20ft Container Residence Ground Plans

These plans show that you do not want a number of area to stay comfortably and stylishly. They’re good for solo dwellers or {couples}.

1. The Minimalist Studio

This structure embraces simplicity with an all-in-one residing area. It usually locations the lavatory at one finish, a kitchenette alongside one wall, and a mixed residing and sleeping space that adapts to your wants all through the day.

Key Options:

  • An open-concept structure that maximizes the sensation of spaciousness.
  • Multi-functional furnishings is important for a clutter-free setting.
  • A compact lavatory and kitchenette are tucked away neatly.
  • Giant home windows or a glass door improve pure mild.

Greatest For: People or {couples} who love minimalist residing and desire a easy, inexpensive, and extremely environment friendly house or getaway cabin.

Compact 20ft minimalist container home layoutCompact 20ft minimalist container home layout

Minimalist studio type in container home ground plans

Picture Credit score: Pinterest

2. The Workplace & Visitor Suite Combo

This design cleverly separates work and rest inside a single 20ft container. One half serves as a productive workplace area, whereas the opposite capabilities as a snug visitor suite with a Murphy mattress and a small lavatory.

Key Options:

  • A bodily divider like a bookshelf or curtain creates distinct zones.
  • The workplace space features a built-in desk and sensible storage options.
  • The visitor space encompasses a fold-down mattress to avoid wasting area.
  • A shared or separate entrance might be included for privateness.

Greatest For: Professionals who work at home and want a devoted workspace that may simply convert right into a welcoming area for friends.

Smart 20ft container house office guest designSmart 20ft container house office guest design

Purposeful 20ft container home plan with workplace and visitor suite

Picture Credit score: Pinterest

Spacious & Sensible: 40ft Container Residence Ground Plans

With double the area of a 20ft unit, these 40ft plans supply extra room for devoted residing areas and rising households.

3. The Open-Idea One-Bed room

This common transport container home ground plan dedicates one finish of the container to a non-public bed room and loo. The remaining area is opened as much as create a big, ethereal front room and kitchen space good for entertaining.

Key Options:

  • A transparent division between personal and customary residing areas.
  • The kitchen usually options an island for eating and prep.
  • The residing space is massive sufficient for a snug couch.
  • The bed room can comfortably match a queen-sized mattress.

Greatest For: 1-bedroom home plans are thought for {couples} or single people who desire a conventional house structure with a spacious really feel and loads of room for each day actions.

Open concept 40ft shipping container home layoutOpen concept 40ft shipping container home layout

Open-concept container home ground plans with fashionable design

Picture Credit score: Pinterest

4. The Household-Pleasant Two-Bed room

This structure is a masterclass in area optimization, becoming two cozy bedrooms, a shared lavatory, and a central residing space right into a 40ft container. The bedrooms are usually at reverse ends for privateness, with the residing area in between. To make planning simpler, you should utilize Foyr Neo to tug and drop components from a library of over 60,000 pre-built 3D fashions, serving to you discover the right kid-friendly furnishings and storage options to visualise your container home ground plans precisely.

Key Options:

  • Bedrooms are positioned at both finish of the container.
  • A central, open-plan kitchen and residing space join the house.
  • Bunk beds or loft beds can be utilized to maximise area.
  • Sensible storage options are constructed into partitions and furnishings.

Greatest For: Small households or people who want an additional room for friends or a house workplace and desire a purposeful structure.

Two-bedroom container house plan layout 40ftTwo-bedroom container house plan layout 40ft

Household-friendly 40ft storage container home plans

Picture Credit score: Pinterest

Earlier than we discover different container house plans, try this video on how you should utilize Foyr to design a container house:

 

 

 

Past the Field: Multi-Container Residence Ground Plans

Able to assume larger? Combining a number of containers unlocks a world of architectural creativity, giving you extra space and distinctive structure prospects.

5. The L-Formed Structure

This design makes use of two or extra containers joined at a 90-degree angle to create a non-public outside residing area. One wing can home the personal bedrooms, whereas the opposite comprises the general public residing, eating, and kitchen areas.

Key Options:

  • Creates a sheltered patio or courtyard good for outside eating.
  • Separates the sleeping quarters from the primary residing areas.
  • Affords a number of entry factors and glorious indoor-outdoor circulate.
  • Giant home windows going through the courtyard join the areas visually.

Greatest For: Those that love entertaining and wish to create a seamless connection between their indoor and outside residing environments.

 L-shaped container house floor plan design L-shaped container house floor plan design

L-shaped storage containers house plans with personal courtyard

Picture Credit score: Pinterest

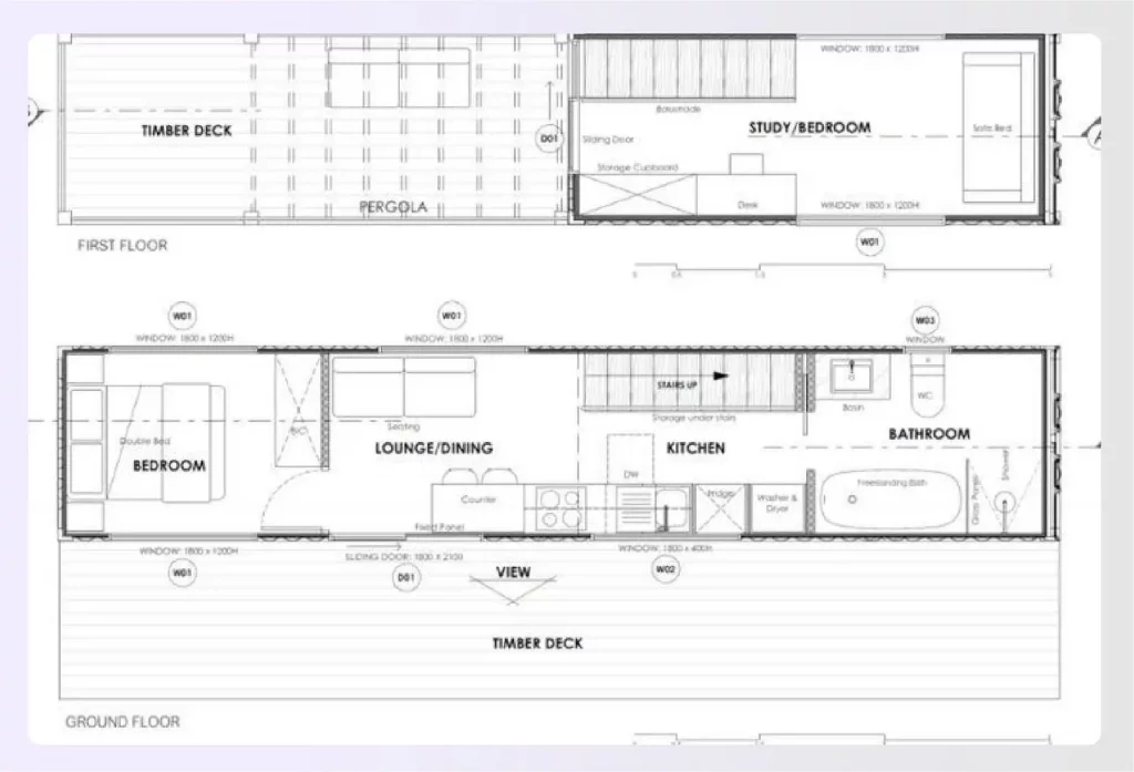
6. The Stacked Two-Story Residence

For a really spectacular fashionable container house design, stacking containers creates a second story. This method maximizes your residing area on a smaller land footprint and may present beautiful views from the higher stage. With a software like Foyr Neo, you should utilize the Pan Characteristic and Tips to completely place components on each flooring, guaranteeing your design is symmetrical and clearances meet code necessities.

Key Options:

  • An inside staircase connects the 2 ranges of residing area.
  • The bottom ground can be utilized for frequent areas, with bedrooms upstairs.
  • An upper-level balcony or rooftop deck provides useful outside area.
  • The stacked design makes a daring architectural assertion.

Greatest For: Households needing extra sq. footage on a restricted lot dimension or anybody eager to capitalize on scenic views.

Stacked two-story shipping container home designStacked two-story shipping container home design

Two-story transport container house ground plans for households

Picture Credit score: Pinterest

7. The U-Formed with a Central Courtyard

Utilizing three or extra containers, this structure creates a surprising house centered round a non-public courtyard. This design is the last word for indoor-outdoor residing, with practically each room in the home opening as much as the central outside area.

Key Options:

  • Offers the last word personal and sheltered outside sanctuary.
  • Totally different wings might be designated for residing, sleeping, and dealing.
  • Ground-to-ceiling home windows can line the interior partitions for superb views.
  • Permits for glorious cross-ventilation and pure mild all through the house.

Greatest For: Bigger households or those that need an opulent and personal retreat with a powerful emphasis on outside residing.

U-shaped container home floor plan with courtyardU-shaped container home floor plan with courtyard

Trendy U-shaped container home ground plans for open residing

Picture Credit score: Pinterest

Specialty Container Residence Ground Plans

These designs cater to particular life and desires, showcasing how adaptable storage containers house plans might be.

8. Off-Grid Container Cabin Plans

This plan focuses on sustainability and self-sufficiency. It incorporates options like photo voltaic panel placement, rainwater harvesting methods, and composting bogs. The structure is often easy and environment friendly to reduce power consumption.

Key Options:

  • Designed to function independently of public utilities.
  • Typically features a wood-burning range for heating.
  • The structure prioritizes power effectivity and water conservation.
  • Giant home windows are positioned strategically to maximise passive photo voltaic heating.

Greatest For: Environmentally acutely aware people, survivalists, or anybody in search of a distant, self-sufficient cabin or retreat.

Off-grid storage container home plan designOff-grid storage container home plan design

Off-grid container home plan with sustainable design options

Picture Credit score: Pinterest

9. Luxurious Container Residence Designs

Who says container houses can’t be luxurious? This fashionable container house design usually combines a number of containers to create massive, open areas with high-end finishes. Options might embrace floor-to-ceiling glass partitions, spa-like loos, and gourmand kitchens. You may carry these luxurious particulars to life with Foyr Neo’s AI-driven, photorealistic rendering, producing beautiful 12K high quality visuals that showcase each materials and texture precisely for spectacular shopper displays.

Key Options:

  • Sprawling open-concept residing areas created from a number of containers.
  • Excessive-end supplies like marble counter tops and hardwood flooring.
  • Superior sensible house expertise built-in all through the design.
  • Options like a house theater, wine cellar, or house health club.

Greatest For: Anybody trying to construct an announcement house that mixes industrial stylish with high-end luxurious and fashionable facilities.

Luxury container house plan design with modern interiorsLuxury container house plan design with modern interiors

Luxurious fashionable container house design with premium finishes

Picture Credit score: Pinterest

Create photorealistic container home renders with FoyrCreate photorealistic container home renders with FoyrWhat to Think about Earlier than Selecting a Container Residence Ground Plan?

Choosing a structure is thrilling, however there are just a few sensible concerns to remember. Serious about these components early will prevent complications down the highway.

  • Insulation & Inside Partitions: Do not forget that including insulation and inside framing will cut back your inside dimensions. You may lose as much as six inches from every wall, so issue this into your container house ground plans to make sure your furnishings suits.
  • Window & Door Placement: Reducing openings right into a container impacts its structural integrity. You have to fastidiously plan the location of your home windows and doorways to make sure you get sufficient pure mild and air flow with out compromising the construction.
  • Plumbing & Electrical: It’s a lot simpler and cheaper to plan on your utilities from the beginning. Resolve the place your kitchen, lavatory, and shops will go early within the design course of to keep away from the expensive process of retrofitting them later.
  • Ceiling Peak: A typical container has a ceiling top of about 8 ft, which may really feel decrease after including insulation and flooring. Excessive dice containers supply an additional foot of top, making the area really feel rather more open and ethereal.
  • Native Constructing Codes and Rules: This can be a large one. Each municipality has completely different guidelines for container houses. Earlier than you finalize any transport container home ground plan, examine together with your native constructing authority to know the precise necessities and restrictions in your space.

For hands-on help turning your container house ground plans into beautiful interiors, discover Foyr’s inside design companies, the place consultants personalize each element from supplies to lighting ranging from simply $99.

Key Factors for Your Container Home Floor PlanKey Factors for Your Container Home Floor PlanDesign Your Personal Container Residence Ground Plan with Foyr Neo

Feeling impressed to create your personal distinctive container home plan? With the precise software, you possibly can carry your imaginative and prescient to life sooner than you ever thought attainable. Foyr is a strong, all-in-one inside design software program made for inside designers such as you. 

Take a look at this video to see how one can design full ground plans in minutes with Foyr:


It simplifies the whole course of from 2D ground planning to beautiful 3D visualization. You may simply experiment with completely different layouts, drag and drop furnishings from an enormous library, and see your concepts in photorealistic element in minutes, not hours.

  • Intuitive 2D & 3D planning to simply create and visualize your ground plans. 
  • An intensive library of 60,000+ render-ready 3D fashions and furnishings. 
  • AI-powered rendering that delivers photorealistic 12K high quality photos in minutes. 
  • Sensible instruments just like the Ruler and Tips for exact, correct designs.
  • Cloud-based entry enables you to work in your designs from wherever, even on an iPad. 

Prepared to begin designing? See how Foyr Neo can optimize your workflow and enable you create beautiful container house ground plans.

Join a 14-day free trial and produce your design concepts to life!

Regularly Requested Questions (FAQs)

1. How a lot ground area is in a 40ft container?

A typical 40ft container (40′ lengthy by 8′ extensive) presents roughly 320 sq. ft of gross ground area. Nevertheless, after you add insulation and inside partitions, the usable residing area is often diminished to round 280-300 sq. ft, relying on the thickness of your supplies.

2. What’s the normal ground of a container?

Delivery containers usually include a marine-grade plywood ground that’s about 1.1 inches thick. Whereas this flooring could be very sturdy and handled to withstand moisture and pests, most individuals select to cowl it with their most well-liked flooring materials, like laminate, vinyl, or tile, for aesthetic and luxury causes.

3. What’s the greatest base for a container house?

One of the best basis for a container house will depend on your soil sort and native constructing codes. Frequent choices embrace a concrete slab, which presents glorious stability, or pier foundations, that are extra inexpensive and have much less environmental affect. It’s essential to make sure the inspiration is completely stage.

4. Does a container house rust?

Delivery containers are made out of Corten metal, which is designed to withstand rust and corrosion from harsh marine environments. Whereas they’re extremely sturdy, any scratches or cuts within the paint can result in rust over time. Correct upkeep and a top quality exterior paint job are important.

5. What’s the lifespan of a container home?

A well-maintained container house can final for 25 years or extra. The lifespan relies upon closely on the situation of the container at buy, the local weather, and the way effectively it’s maintained. With correct rust prevention, a protecting roof, and common maintenance, its longevity might be prolonged considerably.

Supply: Foyr

You may also like

About Us

Luxerise.net is one of the best Home Decor and Interior Design News websites, we provide the latest news, articles, and tips about Home Decor and Interior Design and luxury homes from all around the world.

Decor & Design

Newsletter

Subscribe my Newsletter for new blog posts, tips & new photos. Let's stay updated!

Copyright ©  Decoristaa™ , All right reserved.

This website uses cookies to improve your experience. We'll assume you're ok with this, but you can opt-out if you wish. Accept Read More